
Q: I’m going to scratchbuild a two-track telltale for both of my tunnel entrances. I have a couple of questions. How are railroad telltales made? What material did the railroads use? For a double track, would there be one long bar or two separate bars with the telltales on them? – Wes Barteck
A: I talked about the purpose of telltales in my “Ask MR” column of September 2017. A telltale is a trackside fixture that works like a bead curtain hanging over the track. Its purpose is to warn brakemen who might be walking on top of a car that a tunnel, overpass, signal bridge, or other low-clearance situation is coming up. If he hit the pendants, he would know to get off the roof quickly.
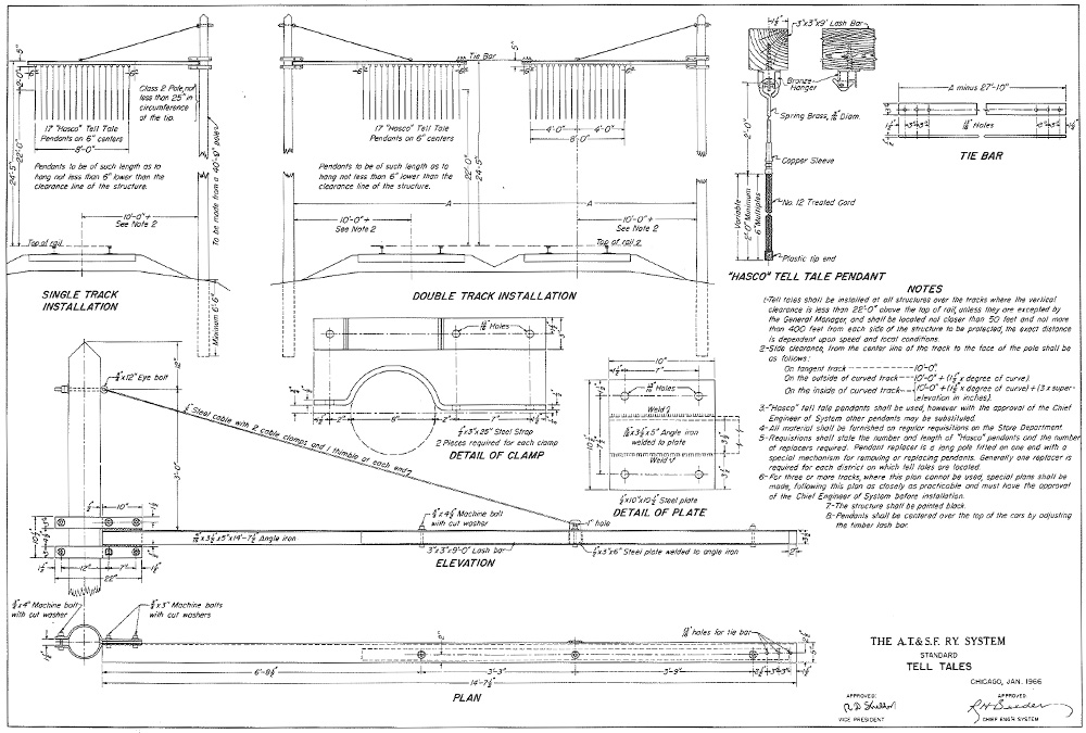
The dangling strands of the telltale were generally made of weather-treated rope. Wire or chain might have lasted longer, but its purpose wasn’t to hurt the train crew, after all. Most of them would cover just a single track. If two tracks led to an obstruction, a single-track telltale would be installed on each side, and if they aligned, the arms would be linked by a bar to add stability. It’s conceivable that a single telltale could be designed to cover more than one track, but such a structure wouldn’t be stable if it were supported by a single pole.
If you want to know how railroad telltales are made, turn to the prototype. The construction of trackside fixtures like this would usually be standardized, prefabricated to specifications in the railroad’s plan book. The diagram below comes from the Atchison, Topeka & Santa Fe’s engineering plan book from 1978, showing that telltales were still being constructed and used on some railroads long after roof-top brake wheels and air brakes made it unnecessary for brakemen to walk the roofs of train cars. You can’t be too safe, I guess.

Send us your questions
Have a question about modeling, operation, or prototype railroads? Send it to us at AskTrains@Trains.com. Be sure to put “Ask MR” in the subject.
